
Villa Schneeberger - La Chaux-de-Fonds
Rénovation de la maison “Schneeberger”
2023
La maison, dessinée et construite par l’architecte de renom Jacques-Goerges Haefeli en 1971 pour son ami Pierre Schneeberger et sa famille est composée de 3 étages et d’un sous-sol.
Le rez-de-chaussée, dédié à l’origine à un atelier de gravue, donne directement sur le jardin, les étages sont destinés à l’habitation. La rénovation avait pour but de retrouver la maison au plus proche de son état d’origine. En effet, beaucoup de pièces avaient été recouvertes de moquette (sol, mur et plafond), comme le dictait la tendance de l’époque. Après un travail de restauration soigné, la plupart des surfaces ont pu retrouver leur apparence initiale. Les salles d’eau et la cuisine ont été remises au goût du jour. Afin d’apporter une touche chaleureuse et de garantir une bonne acoustique aux espaces, d’épais rideaux de laine ont été posés dans les chambres et dans la double hauteur. Les matériaux ont été choisis de manière à souligner la construction d'origine et à créer un climat d'habitation confortable en accord avec le béton et la maçonnerie apparente.
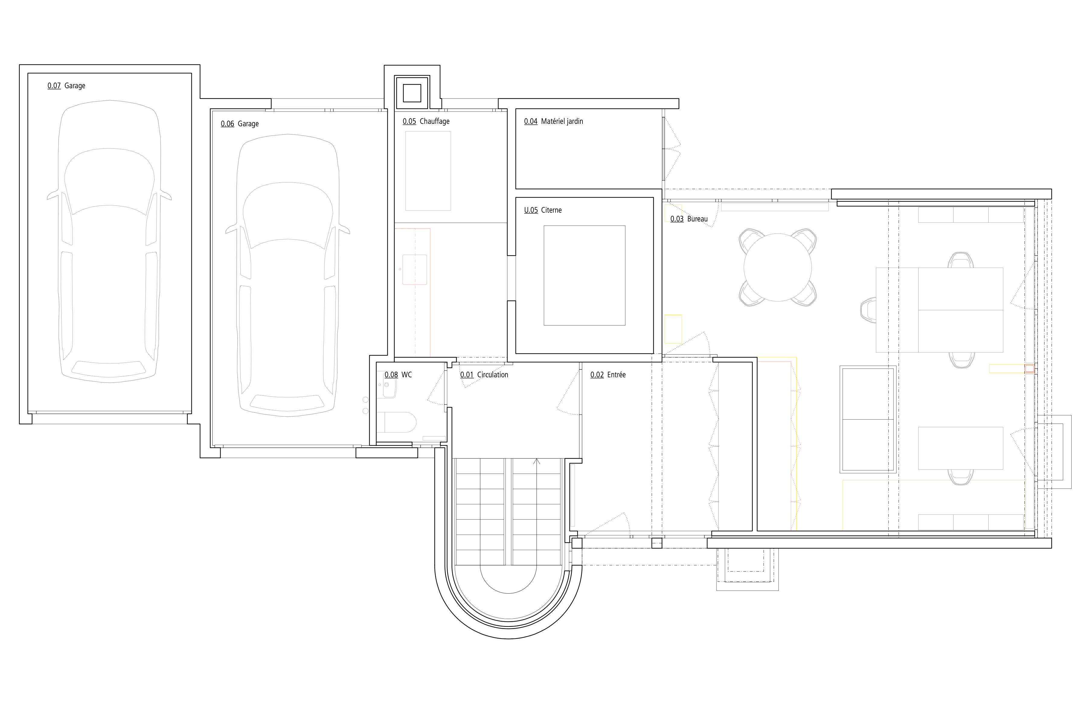
Rénovation de la maison “Schneeberger”
2023
La maison, dessinée et construite par l’architecte de renom Jacques-Goerges Haefeli en 1971 pour son ami Pierre Schneeberger et sa famille est composée de 3 étages et d’un sous-sol.
Le rez-de-chaussée, dédié à l’origine à un atelier de gravue, donne directement sur le jardin, les étages sont destinés à l’habitation. La rénovation avait pour but de retrouver la maison au plus proche de son état d’origine. En effet, beaucoup de pièces avaient été recouvertes de moquette (sol, mur et plafond), comme le dictait la tendance de l’époque. Après un travail de restauration soigné, la plupart des surfaces ont pu retrouver leur apparence initiale. Les salles d’eau et la cuisine ont été remises au goût du jour. Afin d’apporter une touche chaleureuse et de garantir une bonne acoustique aux espaces, d’épais rideaux de laine ont été posés dans les chambres et dans la double hauteur. Les matériaux ont été choisis de manière à souligner la construction d'origine et à créer un climat d'habitation confortable en accord avec le béton et la maçonnerie apparente.











