
Villa Schneeberger - La Chaux-de-Fonds
Renovierung Villa Schneeberger
2023
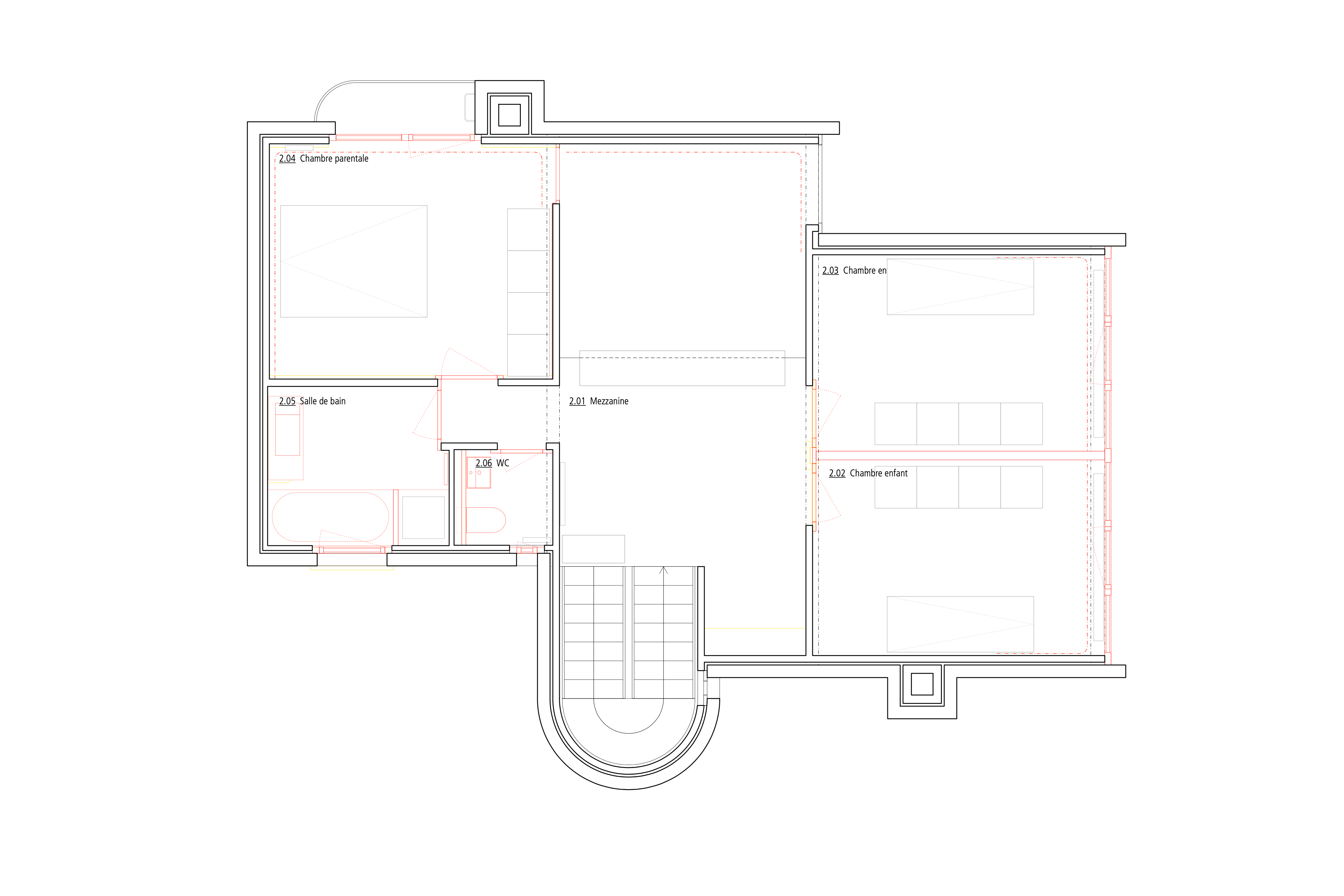
Das Haus wurde im Jahr 1971 vom bekannten Architekt Georges-Jaques Haefeli für seinen Freund Pierre Schneeberger entworfen und gebaut und reiht sich in die brutalistischen Werke von Haefeli aus dieser Zeit ein. Das Haus besteht aus einem Untergeschoss, dem Erdgeschoss, welches dem Atelier gewidmet ist und zwei weiteren Geschossen, welche dem wohnen dienen.
Der Leitgedanke beim Umbau war, das Bauwerk so weit wie möglich in den ursprünglichen Zusatand zurück zu versetzen. In den 80er-Jahren wurden diverse Räume komplett mit Teppich verkleidet - selbst die Betondecke im Bad wurde nicht verschont. Nach Möglichkeit wurden die darunter liegenden Backsteinwände und Betondecken in aufwändiger Restaurationsarbeit wieder freigelegt.
Die Nasszellen und die Küche wurden komplett neu gestaltet, ansonsten ist der Umbau gänzlich dem ursprünglichen Konzept unterworfen. Die Materialien sind so gewählt, dass sie den ursprünglichen Bau unterstreichen und in kombination mit dem Sichtbeton und dem Sichtmauerwerk ein behagliches Wohnklima schaffen.
Renovierung Villa Schneeberger
2023
Das Haus wurde im Jahr 1971 vom bekannten Architekt Georges-Jaques Haefeli für seinen Freund Pierre Schneeberger entworfen und gebaut und reiht sich in die brutalistischen Werke von Haefeli aus dieser Zeit ein. Das Haus besteht aus einem Untergeschoss, dem Erdgeschoss, welches dem Atelier gewidmet ist und zwei weiteren Geschossen, welche dem wohnen dienen.
Der Leitgedanke beim Umbau war, das Bauwerk so weit wie möglich in den ursprünglichen Zusatand zurück zu versetzen. In den 80er-Jahren wurden diverse Räume komplett mit Teppich verkleidet - selbst die Betondecke im Bad wurde nicht verschont. Nach Möglichkeit wurden die darunter liegenden Backsteinwände und Betondecken in aufwändiger Restaurationsarbeit wieder freigelegt.
Die Nasszellen und die Küche wurden komplett neu gestaltet, ansonsten ist der Umbau gänzlich dem ursprünglichen Konzept unterworfen. Die Materialien sind so gewählt, dass sie den ursprünglichen Bau unterstreichen und in kombination mit dem Sichtbeton und dem Sichtmauerwerk ein behagliches Wohnklima schaffen.











