
Maison de Maître
Umbau, La Chaux-de-Fonds
2023 — 2024
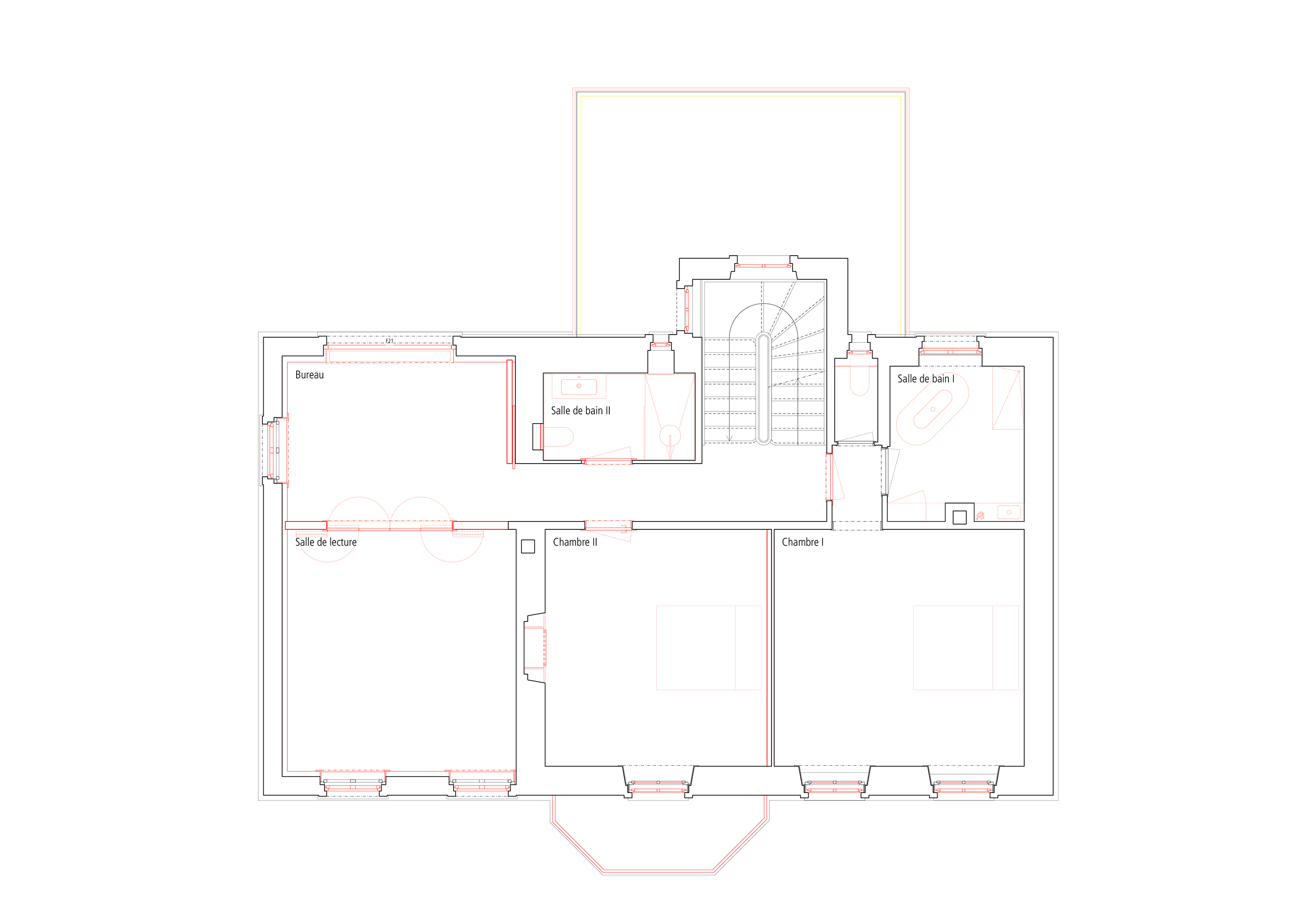
Das in La Chaux-de-Fonds um 1905 gebaute und 1967 erweiterte Herrenhaus wurde vollumfänglich renoviert. Der Umbau versucht die durch diverse Eingriffe und Erweiterungen die teilweise verlorenen räumlichen Qualitäten des Hauses wieder herzustellen. Ein wichtiger Teil ist zudem ein komplett neuer Garten, welcher im Jahr 2025 geplant ist.
Die unbefriedigende Eingangssituation, die aus dem Umbau von 1967 hervorging, wurde überarbeitet. Der Haupteingang befindet sich wieder an der ursprünglichen Position an der Nordfassade. Ein grosses Fenster ersetzt nun den früheren Eingang und bietet einen Blick auf die neue „Laderampe“, welche die Küche direkt mit dem Garten verbindet. Eine neue Treppe auf der Westseite verbindet auch das Wohnzimmer direkt mit dem Garten. Der bestehende Zugang im Untergeschoss wurde erneuert, und der Weg durch die Waschküche nach draussen wurde klar gestaltet.
Umbau, La Chaux-de-Fonds
2023 — 2024
Das in La Chaux-de-Fonds um 1905 gebaute und 1967 erweiterte Herrenhaus wurde vollumfänglich renoviert. Der Umbau versucht die durch diverse Eingriffe und Erweiterungen die teilweise verlorenen räumlichen Qualitäten des Hauses wieder herzustellen. Ein wichtiger Teil ist zudem ein komplett neuer Garten, welcher im Jahr 2025 geplant ist.
Die unbefriedigende Eingangssituation, die aus dem Umbau von 1967 hervorging, wurde überarbeitet. Der Haupteingang befindet sich wieder an der ursprünglichen Position an der Nordfassade. Ein grosses Fenster ersetzt nun den früheren Eingang und bietet einen Blick auf die neue „Laderampe“, welche die Küche direkt mit dem Garten verbindet. Eine neue Treppe auf der Westseite verbindet auch das Wohnzimmer direkt mit dem Garten. Der bestehende Zugang im Untergeschoss wurde erneuert, und der Weg durch die Waschküche nach draussen wurde klar gestaltet.
Plaene